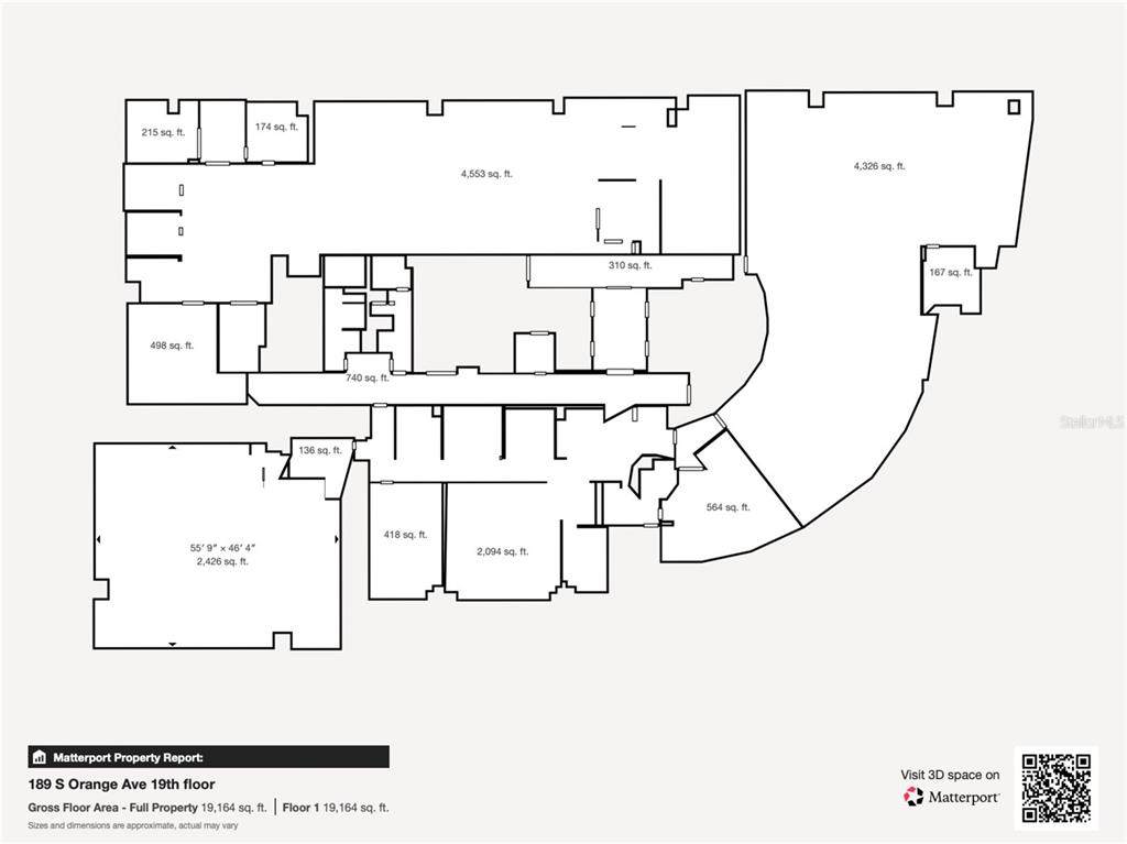
Description
Unlock a rare opportunity to occupy or invest in a full floor within one of Downtown Orlando’s most recognizable Class A office towers. The 19th floor at The Plaza South Tower offers ±19,032 rentable square feet (±16,548 usable) across six modern suites (1900–1970 S), with options for full-floor occupancy or divisible configurations starting around ±2,500 RSF. Highlights: *Premium Class A finishes with floor-to-ceiling glass *Multiple private balconies with skyline views *Efficient central-core layout for flexible demising *Modern elevator lobby and secure access *Covered parking available onsite *Walkable to Amway Center, Kia Center, and downtown dining Perfect for corporate headquarters, professional firms, or creative offices seeking a premier downtown address with high visibility and exceptional amenities.
-
0BEDS
-
0.44ACRES
-
0BATHS
-
01/2 BATHS
-
19,032SQFT
-
$184$/SQFT
School Ratings & Info
Description
Unlock a rare opportunity to occupy or invest in a full floor within one of Downtown Orlando’s most recognizable Class A office towers. The 19th floor at The Plaza South Tower offers ±19,032 rentable square feet (±16,548 usable) across six modern suites (1900–1970 S), with options for full-floor occupancy or divisible configurations starting around ±2,500 RSF. Highlights: *Premium Class A finishes with floor-to-ceiling glass *Multiple private balconies with skyline views *Efficient central-core layout for flexible demising *Modern elevator lobby and secure access *Covered parking available onsite *Walkable to Amway Center, Kia Center, and downtown dining Perfect for corporate headquarters, professional firms, or creative offices seeking a premier downtown address with high visibility and exceptional amenities.
Related Properties
© 2026 My Florida Regional MLS DBA Stellar MLS. All rights reserved. All listings displayed pursuant to IDX. All listing information is deemed reliable but not guaranteed and should be independently verified through personal inspection by appropriate professionals. Listings displayed on this website may be subject to prior sale or removal from sale; availability of any listing should always be independently verified. Listing information is provided for consumers personal, non-commercial use, solely to identify potential properties for potential purchase; all other use is strictly prohibited and may violate relevant federal and state law. Data last updated 2026-01-20T13:45:48.207.
